プラン詳細
専用個室
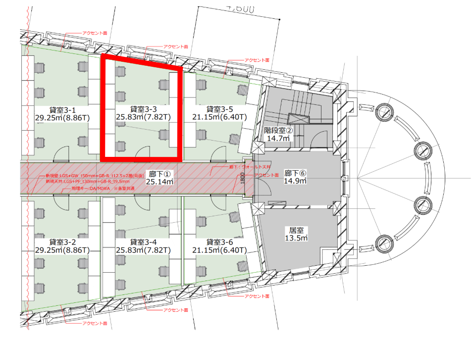
空きあり303号室
旧横浜第一銀行横浜支店のランドマーク化を計り、地域に開けた「BankPark YOKOHAMA」がオープン。 館内内には個室オフィスやコワーキングスペース、工芸に触れることができるイベントスペース、カ...
賃料
月額費用:350,000円(税込385,000円)
賃料(共益費込)
初期費用総額:お問い合わせ
契約
契約種別
定期借家契約
契約 期間
24ヶ月
入居可能時期
-
期間内解約
不可
施設情報
階数
3階
広さ
25.83㎡
利用人数
〜7名
備考
-
写真


